Frappes et Fixes en aluminium
Pour les projets les plus ambitieux en termes d'efficacité thermique, SAPA a lancé le système Performance 70, une gamme complète et évolutive, avec des solutions particulièrement adaptées au marché de la rénovation.
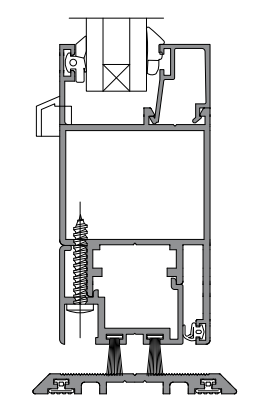
Les fenêtres et portes fenêtres Performance 70 OC+ sont dotées d'un système ingénieux d'ouvrants cachés pour laisser place aux surfaces vitrées.
Associées à de grandes dimensions, vous bénéficiez de 50% de luminosité supplémentaire !
Le gain de lumière agrandira d’autant votre intérieur. Le simple changement de fenêtres vous permet ainsi de transformer vos espaces intérieurs et de valoriser votre patrimoine.
Parfaitement modulaire, cette gamme de profilés aluminium à isolation thermique renforcée, permet de réaliser des fenêtres, portes-fenêtres, portes lourdes et s’adapte également à toutes les combinaisons de châssis composés.
La gamme 45 I en série froide est la menuiserie en aluminium idéale dans la recherche de composition non isolée.
Son utilisation convient parfaitement pour les séparations de balcon, vitrine magasin, loggia, porte d’entrée d’immeuble, cloisons intérieures…




